CE 469 Barrio Golf II
Descripción
INFORMACIÓN BÁSICA
Dormitorios : 4
Baños : 3
Cocheras : 2
Antigüedad : 4 Años
SUPERFICIES Y MEDIDAS
Terreno: 1009 m²
Cubierta: 200 m²
Semicubierta: 30 m²
Superficie Total: 219 m²
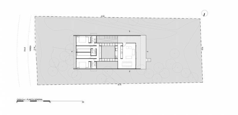
. Esta se organiza en dos plataformas dispuestas a diferencia de medio nivel, conectadas por medio de escaleras rampantes de suave pendiente y un vacío en el que el bosque de pinos se hace parte de la casa.
La plataforma posterior -elevada a medio nivel del acceso y apoyada sobre el terreno natural- alberga el área social compuesta por un living con comedor y cocina integrada a través de una importante barra.
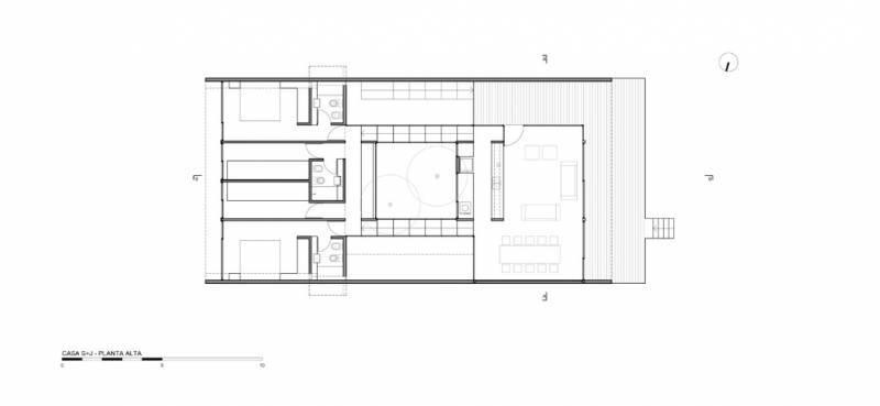
Los dormitorios, dos de ellos en suite y los dos restantes con formato de camarote que comparten el otro baño.
Se eligió para las carpinterías aluminio anodizado color bronce oscuro para enfatizar los vanos de las aberturas.
En el exterior de la casa encontramos un espacio cerrado para el guardado de vehículos de playa y otro semicubierto para los coches.
Disponibilidad
| L | M | X | J | V | S | D |
|---|---|---|---|---|---|---|
| 1 usd 300 | 2 usd 300 | 3 usd 300 | 4 usd 300 | 5 usd 300 | 6 usd 300 | 7 usd 300 |
| 8 usd 300 | 9 usd 300 | 10 usd 300 | 11 usd 300 | 12 usd 300 | 13 usd 300 | 14 usd 300 |
| 15 usd 300 | 16 usd 300 | 17 usd 300 | 18 usd 300 | 19 usd 300 | 20 usd 300 | 21 usd 300 |
| 22 usd 300 | 23 usd 300 | 24 usd 300 | 25 usd 300 | 26 usd 300 | 27 usd 300 | 28 usd 300 |
| 29 usd 300 | 30 usd 300 | 31 usd 300 |
||||
| L | M | X | J | V | S | D |
|---|---|---|---|---|---|---|
| 1 usd 300 | 2 usd 300 | 3 usd 300 | 4 usd 300 |
|||
| 5 usd 300 | 6 usd 300 | 7 usd 300 | 8 usd 300 | 9 usd 300 | 10 usd 300 | 11 usd 300 |
| 12 usd 300 | 13 usd 300 | 14 usd 300 | 15 usd 300 | 16 usd 300 | 17 usd 300 | 18 usd 300 |
| 19 usd 300 | 20 usd 300 | 21 usd 300 | 22 usd 300 | 23 usd 300 | 24 usd 300 | 25 usd 300 |
| 26 usd 300 | 27 usd 300 | 28 usd 300 | 29 usd 300 | 30 usd 300 | 31 usd 300 |
|

















